반지하 주택 등 침수방지시설 설치공사 관련 차수판 설치
작년 침수로 인해서
어려움을 겪은 가정이 많았는데요..
그래서 올해는 반지하 주택 등 장마때 침수 취약지대를
지원하기 위한 대책으로 대대적인 차수판 공사를 진행했습니다.

이 차수판 관련 공사를 수주했는데
장마가 오기전에 진행하라고 했으나 전국적으로 자재 수급이 어려워 쉽지않았네요..
이제야 어느정도 90%이상 진행되고 있으니 한시름놓게 되었습니다.,
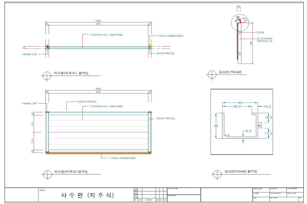
아래는 지주식 차수판 관련 도면입니다.
이도면으로 꼭해야 하는것은 아니라고하니 참고만 하면 좋을거 같아요.

공사를 진행하면서 어려웠던점은
각 가정을 방문해서 사전에 설치 동의서, 설치 신청서, 완료후 확인서를 받는 일인데요. 방문했으나 만날수 없는 경우가 많기 때문에 정말 발품을 많이 파는 상황이 생겼어요.
노력에 비해 결과가 ....
아무튼 이제 발주처에 청구만 할 일만 남았습니다.

시공전 후 사진 입니다.
건물 사진입니다.작년장마때 피해를 많이 입었기 때문에
올해 이 단지에서 모든 세입자들이
신청을 완료했습니다.





건물이 노후화가 많이 되었기 때문에
앙카고정을 위해 작업에도 어려움이 많았습니다.
보통 지주를 좌우측에 세우고 판을 세우는 방식인데
설치 하단이 평평하지 않는 경우
프레임을 설치해야 틈을 최소화하여
물이 들어오는 것을 방지 할수 있습니다.




차수판의 종류는 많지만
제품의 기능에 충실하면서 원가를 절감해야 하는 제품을
만들어야 하는게 목적이므로 이런 점에서
이제품 만한게 없다고 생각합니다.
이상 반지하 주택 등 침수방지시설 설치공사 차수판 설치한
현장이였습니다.
참고하시기 바라며~~







